Visualize Your Dream Kitchen

After hours spent poring over design magazines and bingeing on HGTV shows, you may feel confident in your ability to visualize your dream kitchen and transform it into something beautiful and award-worthy.

At least that’s what you believed when you signed the papers on your brand-new fixer upper…

But reality sets in as you stare at that outdated 80’s-style kitchen, when all you can see is the existing tacky wallpaper and run-down laminate flooring, no matter how hard you focus on picturing something better.

While visualization may be second nature to some, most of us need a little extra help picturing that dream space in our minds – and sometimes we need a lot of help! Luckily, this is something our Revival House designers assist clients with every day. Today we are going to discuss the various ways we do this.

Reasons to Visualize Your Dream Kitchen

First let’s be clear: visualization is much more than a fuzzy mental image of what your space could possibly look like. And it’s more important than “sleek images.” With the help of our designers, you should be able to accurately visualize your project so that you can be confident that the design is just as you expected. Visualization helps both you and your designer solidify design objectives and desired outcomes. A common vision will keep you both on the same page and allow you to objectively provide input as your design is refined.

Another added bonus is that when you can picture your finished project in your mind, that mental image acts as a tasty little carrot that will keep you excited even as the chaos of demolition takes over your home!

Not Your Average Island Kitchen

Meet with a Designer

For all Revival House Kitchen & Bath projects, large or small, you will start with an initial consultation at our showroom. In this meeting you will explain your vision and bounce ideas back and forth with a designer.

This meeting is usually more productive if you bring some pictures from magazines or online resources.

Tip: Be sure to note exactly which features in your pictures are appealing to you, because you might not remember exactly what “spoke” to you at the time.

Your collection might span a variety of disparate styles, but that’s perfectly fine for now. Fortunately, you don’t have to figure out HOW to make it work. You simply bring ideas to the table and talk about features you “must have” and those you “want to have.”

By discussing your project and bouncing ideas back and forth, your designer will also be able to picture the space in his or her head and get good understanding of what you want. This will ultimately help turn your ideas into a design!

You will be surprised by the amount of clarity you can gain from just talking through your ideas with your designer. It’s not therapy, but there is something weirdly cathartic about spilling out all your ideas and allowing your designer to sort through the madness and help you prioritize.

The Revival House Showroom: A Visualization Resource

Another tool that our designers use to help clients visualize their future space is our showroom.

Our showroom has a variety of kitchen vignettes in different design styles so that you can walk through each space and get a feel for what you like and what you don’t like.

There’s a huge difference between seeing a picture of a beautiful kitchen and the experience of physically walking through that kitchen. By walking through these spaces in our showroom, our clients can accurately picture what certain elements would look like in their own homes. (It’s not uncommon for clients to be so inspired by one of our vignettes that they essentially reproduce nearly every element of that vignette in their home!)

Our showroom also helps clients visualize spatial relationships. Our displays are full-sized so you can get an accurate feel for how much counter space you will need, what kind of island you want, and how wide walkways should be.

And lastly, if you’ve ever ordered anything for your home from a website, you probably know that sometimes the color that appears online may not be the color that arrives at your doorstep… That’s why it’s so helpful to have the opportunity to see all the elements of your design – cabinetry, countertops, backsplash, plumbing, hardware, and furnishings – together in the showroom to get an idea of how your color palette and textures will flow together. Seeing, touching, and experiencing these elements together reinforces your confidence in the products you have chosen for your project and helps you visualize your space!

Dura Supreme Display at the Revival House Showroom

The Presentation

The next step in our visualization process is a design presentation! This is where your designer formally presents a potential design and concrete ideas for your project. In this meeting, our designers like to have physical materials for you to touch and feel, as well as drawings or renderings pulled up on a screen. The combination of physical and virtual elements are intended to make your design more tangible in your mind and give you a clear idea of what the space will look like when complete.

The goal is to give you confidence in the design you choose. After all, you are investing a lot of money into this project, the last thing you want is to have any regrets on the design.

Visualize Your Dream Kitchen with Drawings and Renderings

Different projects come with different levels of complexity and thus will require different tools to promote visualization. A project that simply involves updating cabinetry and countertops is going to be easier for a client to visualize than a project that involves tearing out walls and reconfiguring multiple spaces.

For more straightforward projects, our designers will be able to help you visualize your dream kitchen through project plans, design drawings, and inspiration examples.

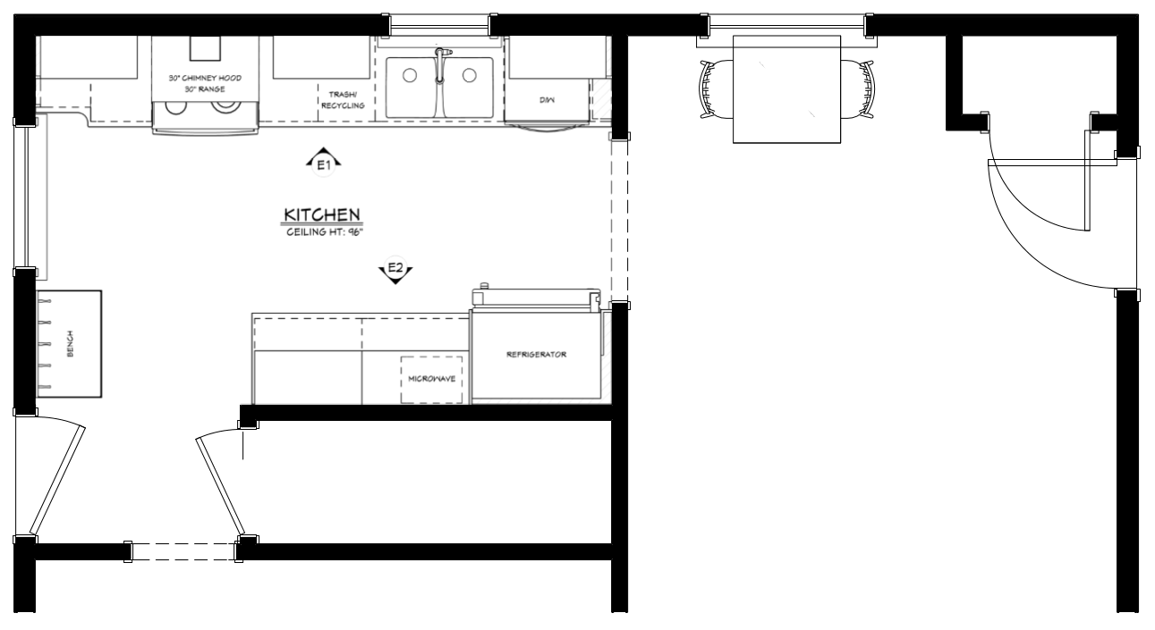
Kitchen Floor Plan

Cabinetry Elevation

But with the larger scale projects it can be extremely hard for clients to envision what their new space will look like without seeing it laid out in front of them. For these types of projects, our designers put together detailed 3D renderings that show clients exactly how their space will look when it is finished. Designers use their discretion to determine whether a project requires the use of 3D renderings.

The benefit of these tools is that adjustments can be made before products are ordered, thus avoiding added costs and keeping your project on track.

Rendering

…to reality!

There is nothing more exciting to our designers than that “ah-ha!” moment when everything clicks for clients and they can finally visualize their space. And even better is the excitement that follows upon project completion!

To learn more about our visualization process or to start a project with Revival House, visit our showroom or check out our website. We’d love to help you visualize your new space!